Menu

Skip to content
  • Predstavitev
  • Storitve
  • Projekti
    • Stanovanjski
    • Javni – poslovni
    • Urbanizem
    • Interier
    • Rekonstrukcije
  • Nepremičnine
  • Kontakt

1273

marec 15, 2015april 13, 2015 admin

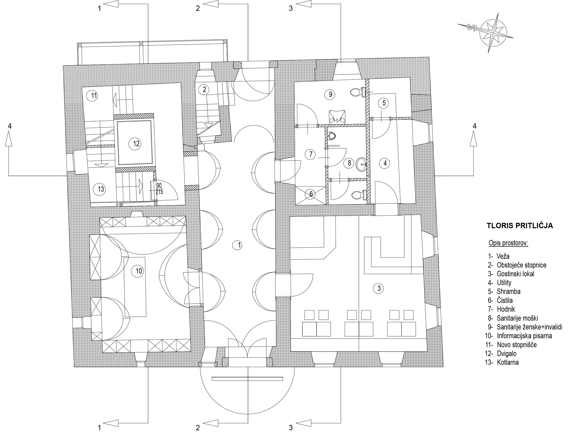
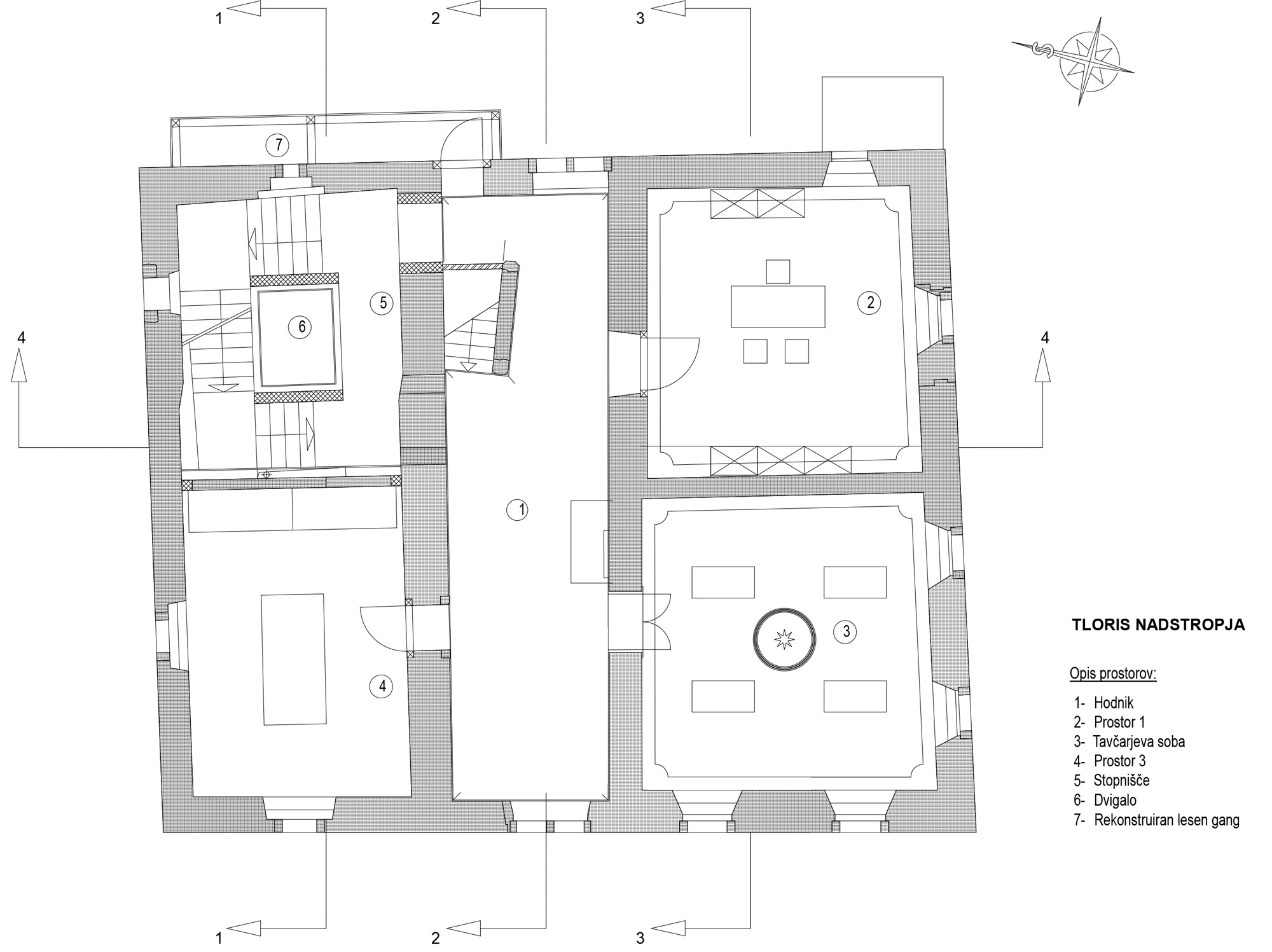
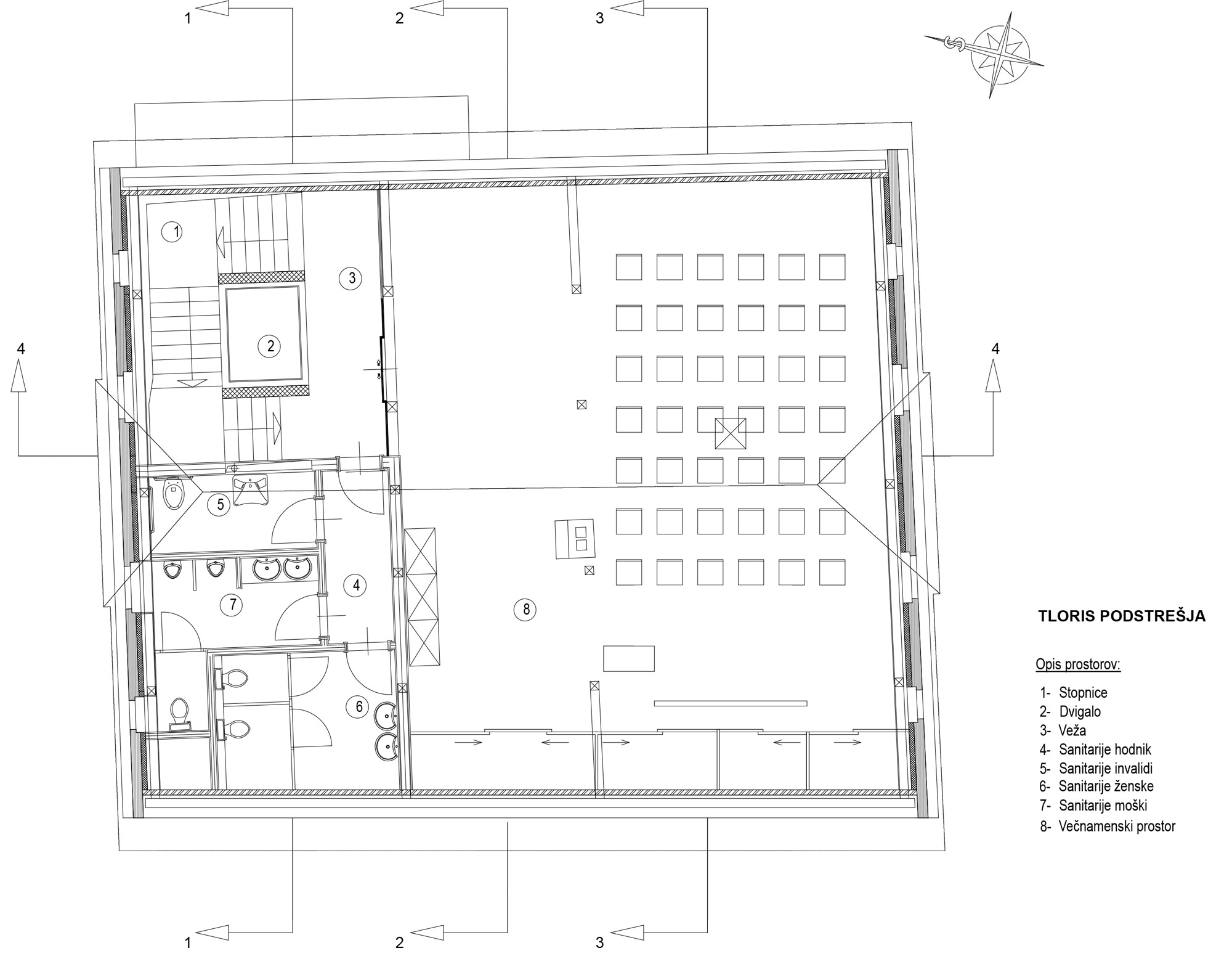
Osnovni podatki:

TAVČARJEV DVOR

- Skupna površina: 450,30 m2
- Etažnost: Pritličje + 1 + Mansarda
- Lokacija: Rečica ob Savinji
- Naročnik : Občina Rečica ob Savinji
- Leto projekta: 2012

Galerija

1273-1.jpg 1273-2.jpg dvor-ulica-pogled-03.jpg trg-pogled-07.jpg recica-tavcarjev-dvor-interier- recica-tavcarjev-dvor-interier- recica-tavcarjev-dvor-interier- recica-tavcarjev-dvor-interier- recica-tavcarjev-dvor-interier- recica-tavcarjev-dvor-interier-
Javni in poslovni objekti Permalink

Copyright 2015 © Studio modul d.o.o.
  • Domov
  • Kontakt
  • O piškotih
  • Predstavitev
  • Storitve
Da bi vam olajšali uporabo spletne strani uporabljamo piškotke (ang. cookies). Z uporabo strani soglašate z uporabo piškotkov.OkO piškotih